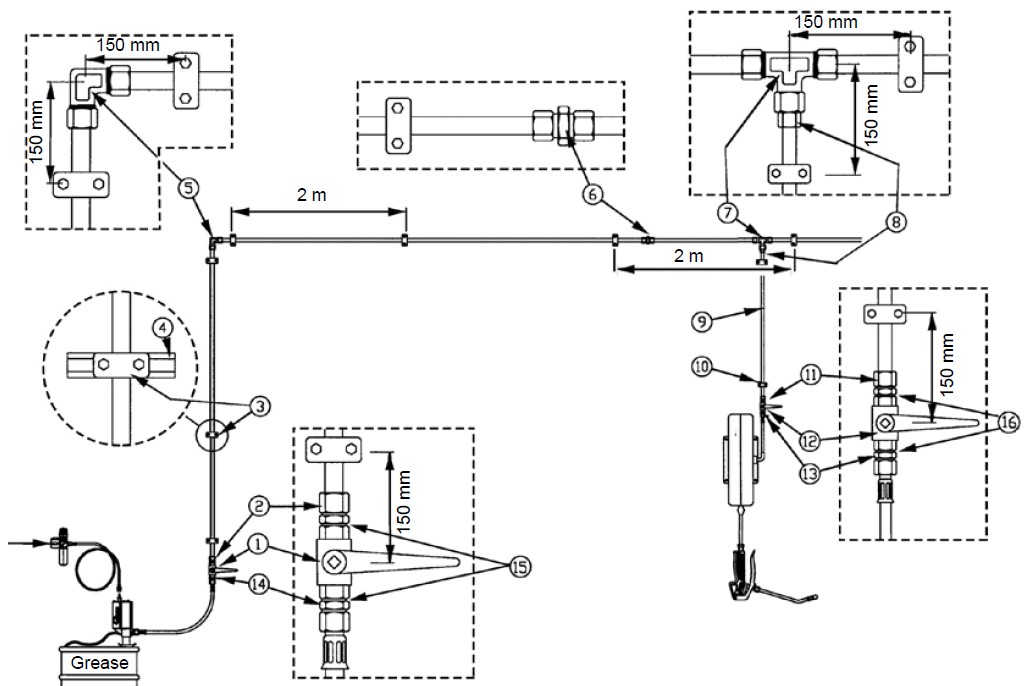
Installation Components, Grease
Pipe Diameters for Different Pipe Lengths (EN10305-4)
Buislengte Diameter 0 - 20 m Ø 20 x 3 mm 0 - 35 m Ø 25 x 3 mm 0 - 60 m Ø 38 x 4 mm
Installation Components
Item nummers verwijzen naar de tekening onderaan
Pos | Description | Pipe diameter | Pipe diameter | Pipe diameter |
Ø 20 x 3 mm | Ø 25 x 3 mm | Ø 38 x 4 mm | ||
1 | Shut-off valve | 30201345 | 30201345 | 30201345 |
2 | Male connector | 10103250 | 10103280 | 10103337 |
3 | Pipe clamp | 70101237 | 70101261 | 70101303 |
4 | Bracket for clamp | 70501423 | 70501423 | 70501423 |
(Length= 2 m) | (Length= 2 m) | (Length= 2 m) | ||
5 | Angle connector | 10106484 | 10106493 | 10106505 |
6 | Union connector | 10103064 | 10103073 | 10103091 |
7 | Tee connector | 10106364 | 10106370 | 10106382 |
8 | Reducer | - | 10101588 | |
9 | Tube | 73202 (L= 6 m) | 73252 (L= 6 m) | 73383 (L= 6 m) |
10 | Pipe clamp | 70101237 | 70101261 | 70101303 |
11 | Male connector | 10103250 | 10103280 | 10103337 |
12 | Shut-off valve | 30201345 | 30201345 | 30201345 |
13 | Adapter | 25102047 | 25102047 | 25102047 |
+25102038 | +25102047 | |||
+25101871 | +70091220 | |||
14 | Adapter | 25102047 | 25102047 | 70091220 |
+25101871 | +25102047 | |||
15 | Rubber/steel washer | 10103544 | 10103517 | 10103523 |
+10103544 | +10103544 | |||
16 | Rubber/steel washer | 10103544 | 10103544 | 10103544 |
+10103517 | +10103523 |
Installation Kits
Buisdiameter Ø 20 x 3 mm
99417 Installatiekit pomp Inbegrepen: Item 1, 2, 14, 2pcs 15.
99420 Installatiekit leiding Inbegrepen: Item 4, 6, 9, 4pcs 3.
99423 Installatiekit haspel Inbegrepen: Item 11,12, 13, 2pcs 16.
Buisdiameter Ø 25 x 3 mm
99418 Installatiekit pomp Inbegrepen: Item 1, 2, 14, 2pcs 15.
99421 Installatiekit leiding Inbegrepen: Item 4, 6, 9, 4pcs 3.
99424 Installatiekit haspel Inbegrepen: Item 11,12, 13, 2pcs 16
Buisdiameter Ø 38 x 4 mm
99419 Installatiekit pomp Inbegrepen: Item 1, 2, 14, 2pcs 15.
99422 Installatiekit leiding Inbegrepen: Item 4, 6, 9, 4pcs 3.
99425 Installatiekit haspel Inbegrepen: Item 11,12, 13, 2pcs 16
99417 Installatiekit pomp Inbegrepen: Item 1, 2, 14, 2pcs 15.
99420 Installatiekit leiding Inbegrepen: Item 4, 6, 9, 4pcs 3.
99423 Installatiekit haspel Inbegrepen: Item 11,12, 13, 2pcs 16.
Buisdiameter Ø 25 x 3 mm
99418 Installatiekit pomp Inbegrepen: Item 1, 2, 14, 2pcs 15.
99421 Installatiekit leiding Inbegrepen: Item 4, 6, 9, 4pcs 3.
99424 Installatiekit haspel Inbegrepen: Item 11,12, 13, 2pcs 16
Buisdiameter Ø 38 x 4 mm
99419 Installatiekit pomp Inbegrepen: Item 1, 2, 14, 2pcs 15.
99422 Installatiekit leiding Inbegrepen: Item 4, 6, 9, 4pcs 3.
99425 Installatiekit haspel Inbegrepen: Item 11,12, 13, 2pcs 16

