Installationskomponenter, olja
Rördimensioner vid olika rörlängder (EN10305-4)
Rörlängd - Diameter
0-50 m - Ø 22 x 1,5 mm
0-150 m - Ø 28 x 2 mm
0-300 m - Ø 35 x 3 mm
0-50 m - Ø 22 x 1,5 mm
0-150 m - Ø 28 x 2 mm
0-300 m - Ø 35 x 3 mm
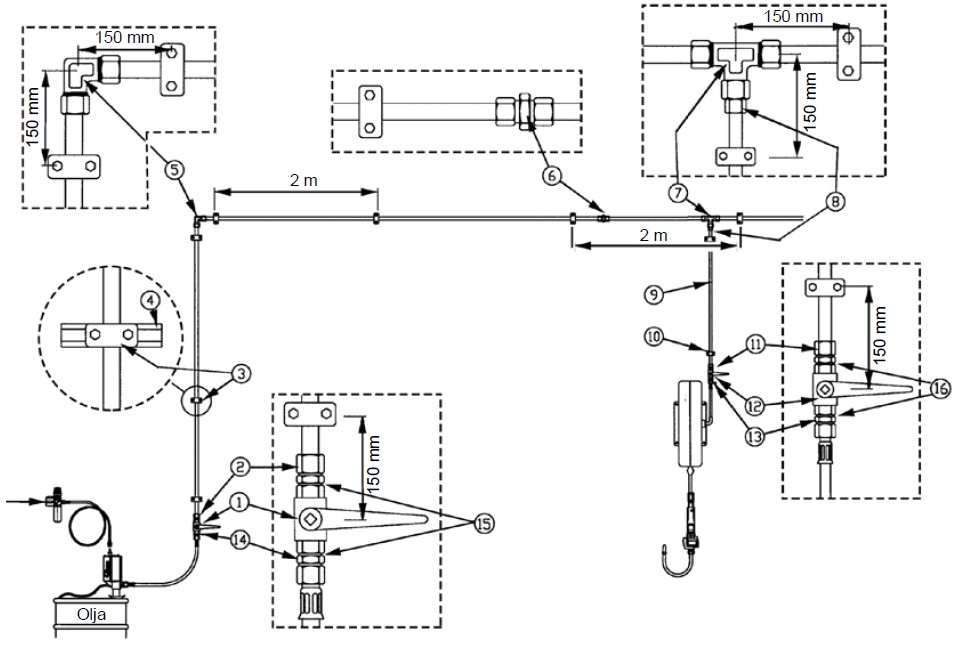
Installationskomponenter
Pos nr refererar till nedanstående ritning
Pos | Beskrivning | Rördiameter | Rördiameter | Rördiameter |
Ø 22 x 1,5 mm | Ø 28 x 2 mm | Ø 35 x 3 mm | ||
1 | Avstängningsventil | 30101111 | 30101081 | 30101087 |
2 | Koppling | 10103724 | 10103295 | 10103325 |
3 | Rörklammer | 70101249 | 70101273 | 70101297 |
4 | Bärskena | 70501423 | 70501423 | 70501423 |
(Längd= 2 m) | (Längd= 2 m) | (Längd= 2 m) | ||
5 | Vinkelkoppling | 10106490 | 10106496 | 10106502 |
6 | Skarvkoppling | 10103070 | 10103079 | 10103088 |
7 | T-koppling | 10106367 | 10106373 | 10106379 |
8 | Reducering | - | 10101564 | |
9 | Rör | 90101120 | 90101162 | 90101192 |
(Längd= 6 m) | (Längd= 6 m) | (Längd= 6 m) | ||
10 | Rörklammer | 70101249 | 70101273 | 70101249 |
11 | Koppling | 10103724 | 10103295 | 10103325 |
12 | Avstängningsventil | 30101111 | 30101081 | 30101111 |
13 | Nippel | 25102053 | 25102056 | 25102053 |
14 | Nippel | 25102008 | 10105962 | 25102071 |
15 | Gummistålbricka | 10103544 | 10103517 | 10103523 |
16 | Gummistålbricka | 10103544 | 10103517 | 10103544 |
Kompletta monteringssatser
Rördiameter Ø 22 x 1,5 mm
99400 • Anslutningssats pump består av Pos 1, 2, 14, 2st 15.
99403 • Rörsats består av Pos 4, 6, 9, 4st 3.
99406 • Anslutningsats slangupprullare består av Pos 11,12, 13, 2st 16
Rördiameter Ø 28 x 2 mm
99401 • Anslutningssats pump består av Pos 1, 2, 14, 2st 15.
99404 • Rörsats består av Pos 4, 6, 9, 4st 3.
99407 • Anslutningsats slangupprullare består av Pos 11,12, 13, 2st 16
Rördiameter Ø 35 x 3 mm
99402 • Anslutningssats pump består av Pos 1, 2, 14, 2st 15.
99405 • Rörsats består av Pos 4, 6, 9, 4st 3.
99400 • Anslutningssats pump består av Pos 1, 2, 14, 2st 15.
99403 • Rörsats består av Pos 4, 6, 9, 4st 3.
99406 • Anslutningsats slangupprullare består av Pos 11,12, 13, 2st 16
Rördiameter Ø 28 x 2 mm
99401 • Anslutningssats pump består av Pos 1, 2, 14, 2st 15.
99404 • Rörsats består av Pos 4, 6, 9, 4st 3.
99407 • Anslutningsats slangupprullare består av Pos 11,12, 13, 2st 16
Rördiameter Ø 35 x 3 mm
99402 • Anslutningssats pump består av Pos 1, 2, 14, 2st 15.
99405 • Rörsats består av Pos 4, 6, 9, 4st 3.

